Make a Call : +8615559090996
Get A Estimate : senko@fjsenko.com
Интеллектуальный укладчик кирпичей и блоков – это интеллектуальное оборудование для укладки кирпичей, разработанное с использованием запатентованной технологии с зарезервированными зазорами для укладки. Эта система укладки кирпичей и блоков решает проблемы ручной укладки, высокой трудоёмкости, низкой эффективности производства и недостаточной механизации загрузки и разгрузки готовой продукции на существующей простой производственной линии. Это новейшее быстродействующее укладочное оборудование. Система, как правило, устанавливается отдельно рядом с камерой выдержки. Для хорошо выдержанных изделий их можно укладывать на месте или подключать к производственной линии для обеспечения укладки в режиме онлайн.
Укладчик кирпичей/блоков с полным сервоприводом (модель: MDJ-Z1200A))
Вся машина состоит из поддона с подъемником для выдержанных кирпичей/блоков, основного укладочного устройства, толкателя/переворачивателя поддонов, укладчика и т.д., что позволяет получить поддон без дна для укладки кирпича. Вся машина приводится в движение серводвигателями и пневматическим приводом, а электропривод с частотным регулированием скорости отличается интеллектуальностью, стабильностью, скоростью, низким энергопотреблением и компактностью. Данная производственная линия отличается высокой степенью автоматизации, а весь процесс управляется компьютерным шкафом, что не только снижает трудозатраты, но и повышает эффективность и производительность.

Подъемная машина для поддонов, загруженных кирпичами/блоками
Кирпичные плиты, доставленные погрузчиком, каждый поддон с выдержанными кирпичами/блоками, транспортируются в зону резервирования поддонов. Подъемник последовательно захватывает поддоны с кирпичами слой за слоем, спереди и сзади, сверху и снизу, и отправляет их на конвейер перед разделением поддонов на кирпичи/блоки.

Поворотный стол 1 и толкатель кирпичей/блоков
Толкатель 1 сталкивает кирпичи/блоки с поддона и загружает их в поворотный стол 1. Поворотный стол 1 может поворачиваться на 90° для изменения направления в соответствии с требованиями к направлению укладки кирпичей/блоков, а толкатель 2 заталкивает кирпичи/блоки в основной штабелирующий станок.

Основная штабелирующая машина
Толкатель 3 подает кирпичи/блоки на поддон, который перемещается вперед в положение штабелирования. Толкатель 4 опускается, останавливает кирпичи/блоки на поддоне, поддон отходит назад и в сторону, кирпичи/блоки на поддоне последовательно падают и укладываются друг на друга, осуществляя укладку готовых кирпичей/блоков на поддон. Толкатель 4 управляется сервоприводом, который обеспечивает резервирование мест для вилочного погрузчика. После формирования поддона он опускается вниз, и ролики выталкивают уложенные кирпичи на поддон для горизонтальной и вертикальной обвязки и упаковки стальными ПЭТ-лентами.

Толкатель поддонов/Флиппер
После разделения кирпичей пустой поддон транспортируется вперёд по цепи. На цепном конвейере можно установить механизм переворачивания для переворачивания пустого поддона, после чего пустой поддон поступает в машину для паллетирования.

Машина для паллетирования/Машина для укладки поддонов
Пустые поддоны по одному задвигаются внутрь и опускаются вниз, формируя штабель. После того, как штабель сформирован, он опускается вниз, и конвейер выводит сложенные поддоны наружу, где их поднимает вилочный погрузчик.
Отображение структуры:
Информация о параметрах:
| Элемент | Спецификация |
| Размер оборудования | 16000×7000×3200 мм |
| Общая мощность | 33 кВт |
| Максимальная высота продукта | 200 мм (настраиваемый) |
| Диапазон размеров лотков | 1400–850 мм (настраивается) |
| Форма укладки | Прямоугольная или квадратная перекрестная укладка |
| Цикл укладки | 18-23 секунды на слой |
| Максимальный размер стекирования | 1200×1200×1450 мм |
| Мощность двигателя подъемного механизма штабелирования | 7,5 кВт |
| Мощность двигателя толкателя (первый, второй, третий толчок) | 2,2 кВт |
| Мощность двигателя поворотного стола | 1,1 кВт |
| Мощность двигателя проигрывателя | 0,75 кВт |
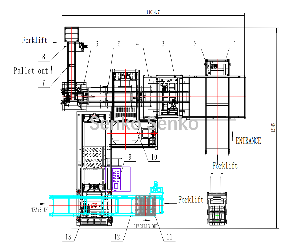
Макет проекта

| 1.Рама для разгрузки поддонов | 2. Переработка рам | 3. Подъемник поддонов | 4. Конвейер для поддонов | 5. Конвейер для пустых поддонов |
| 6.Палетировочная машина | 7. Конвейер для штабелирования поддонов | 8. конвейерный ролик | 9. Шкаф электронного управления | 10.Проигрыватель пластинок |
| 11. Лоток для укладки кирпичей/блоков | 12. Приемник стека | 13.Основной штабелёр |
Преимущества продукта:
1. Эффективная автоматизация: полная замена ручного управления, автоматическое выполнение разделения, укладки и передачи, экономия рабочей силы и повышение эффективности производства.
2. Регулируемое отверстие для вилочного погрузчика: отверстия для вилочного погрузчика зарезервированы для каждого слоя продукции, что удобно для последующей погрузки и разгрузки вилочным погрузчиком, экономя затраты на поддоны.
3. Полностью автоматическая работа: не зависит от погодных условий, эффективная работа в течение длительного времени, подходит для различных производственных условий.
4. Низкий уровень повреждений и эффективная погрузка и разгрузка: последующая погрузка и разгрузка вилочным погрузчиком, высокая эффективность и отсутствие повреждений кирпичей, число замечательных
5. Гибкая функция расположения и вращения: вращение перед отверстием, свободное расположение форм, чтобы удовлетворить различные потребности продукта.
Уложенные в стопку отвержденные продукты:

ТЕГИ :